Implantation d’une cuisine dans le cadre de l'agrandissement d'une habitation sur la ville de Quesnoy-sur-Deûle, près de Lille

Besoin client

Dans le cadre de l'agrandissement d’une habitation, le client, maître d’ouvrage, a exprimé le besoin d’intégrer dès l’origine une cuisine fonctionnelle, moderne et parfaitement raccordée aux autres espaces de vie. L’objectif était de préparer en amont toutes les surfaces (sols, murs, plafonds techniques) ainsi que les attentes et raccordements nécessaires, afin de permettre la pose et l’installation de la cuisine par le cuisiniste dans les meilleures conditions. La demande s’inscrivait dans une logique de cohérence globale entre l’aménagement intérieur, l’harmonie esthétique et l’usage quotidien.

Pour concrétiser ce projet de A à Z, le client a sollicité l’accompagnement de notre courtier en travaux de l’agence La Maison Des Travaux – Marcq-en-Barœul, afin d’en valider la faisabilité, d’évaluer précisément le budget global travaux et de définir en toute sérénité l’enveloppe à consacrer à l’achat de la cuisine.

 

 

Projet

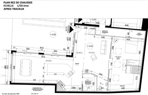
L’étude et l’organisation des réseaux techniques ont été réalisées sur la base du plan d’exécution du cuisiniste, en coordination avec les autres corps d’état :

- Plomberie : mise en place des arrivées et évacuations d’eau conformes aux emplacements des appareils électroménagers (évier, lave-vaisselle, réfrigérateur américain si prévu).

- Électricité : création de circuits spécifiques pour l’éclairage (spots encastrés en faux-plafond), les prises de plan de travail, les électroménagers encastréRéalisation : Implantation d’une cuisine dans le cadre d’une construction neuves et la hotte aspirante.

- Faux-plafond technique : installation permettant l’intégration des réseaux de ventilation et des points lumineux.

- Revêtements : préparation des sols (carrelage adapté à une cuisine), traitement des murs avec faïence dans les zones sensibles (crédence, points d’eau), et finitions prêtes à recevoir le mobilier.
L’ensemble a été pensé pour rester en cohérence avec les salles de bains, WC et les autres espaces techniques de la maison, afin d’optimiser le passage des réseaux et la gestion globale des travaux.

Les plus

L’implantation de la cuisine a été intégrée dès le projet initial de construction. Cette anticipation a permis de :

- maîtriser les coûts liés aux travaux préparatoires et éviter des reprises ultérieures,

- coordonner efficacement les différents intervenants (plombier, électricien, carreleur, plaquiste, peintre et cuisiniste),

- dégager des marges budgétaires grâce aux arbitrages réalisés en amont avec le courtier en travaux LA MAISON DES TRAVAUX, permettant ainsi d’orienter les choix esthétiques et techniques lors de l’achat de la cuisine.

Cette démarche a offert au client l'installation d'une cuisine harmonieuse, fonctionnelle et parfaitement intégrée, livrée clé en main dans un budget maîtrisé.

demander un devis gratuit

Nos derniers conseils et actus

implantation des éléments électroménagers
Pourquoi consulter un courtier en travaux avant d’aller chez un cuisiniste ?

LA MAISON DES TRAVAUX, agence de Marcq-en-Baroeul vous apporte des éléments...

Comment agencer une cuisine à Marcq-en-Baroeul ?
Choisir le style de sa cuisine

Lorsqu’on entreprend un aménagement de cuisine, il convient de définir...

Voir tous les conseils et infos